The system is used to construct windows, doors and showcases with high thermal insulation parameters for use in residential, public and industrial buildings.
The thermal insulators used in the system (made of glass fibre-reinforced polyamide) and the space between them is additionally filled with polyurethane foam. The system makes it possible to create large-size structures due to the use of reinforced profiles on the outside as well as on the inside.
ADVANTAGES OF THE SYSTEM
- optimisation of building operating costs through increased thermal insulation of profiles,
- the possibility of realising modern window construction solutions in various configurations,
- bendable profiles,
- the possibility of installing windows in façade systems,
- possibility to build sets of structures combined at any angle
- the possibility of using a full range of modern fittings and individual handles or catches thanks to the use of different profile widths,
- possibility of using concealed hinges and remote-controlled locks thanks to the profile widths used,
- split thermal breaks to eliminate the bimetallic effect,
- Can be combined with other Yawal systems.
TECHNICAL SPECIFICATIONS
| TM 74HI WINDOWS | TM 74HI DOORS | |
| Air permeability | class 4 wg PN-EN 12207 | class 4 wg PN-EN 12207 |
| Waterproof | E 1050 wg PN-EN 12208 | E 900 wg PN-EN 12208 |
| Heat transfer coefficient | Uf = from 1,0 W/m2K wg PN-EN ISO 10077-2 | Uf = from 1,2 W/m2K wg PN-EN ISO 10077-2 |
| Sound insulation | Rw = 31÷44 dB wg PN-EN ISO 20140-3 |
Rw = 28÷42 dB wg PN-EN 20140-3 |
| Burglary resistance | RC2, RC2N, RC3 | RC2, RC2N, RC3 |
| Wind resistance | class 5 | class 4 |
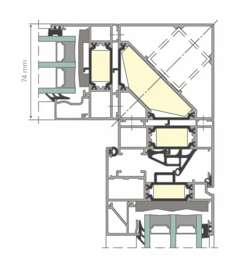
SYSTEM CHARACTERISTICS
| Window construction depth | Frame profile | 74 mm |
| Sash profile | 83,4 mm |
|
| Door construction depth | Frame profile | 74 mm |
| Leaf profile | 74 mm |
|
| Glazing thickness for the window | Frame profile |
16÷58 mm |
| Sash profile |
25÷66 mm | |
| Maximum sash weight | Windows | 180 kg |
| Doors | 250 kg | |
| Maximum dimensions | Windows | – Single-winged: 1400 mm x 2800 mm (width. x height.)
– bi-fold: 2400 mm x 2700 mm (width. x height.) |
| Doors | – Single-winged: 1400 mm x 3000 mm oraz 1103 mm x 3085 mm (width. x height.) and 1500 mm x 2600 mm (width. x height.)
– bi-fold: 2700 mm x 2800 mm (width. x height.) |
|
Quick contact
Need more information?
Get in touch with our specialists:
Get in touch with our specialists:
LOGISTICS
CHIEF TECHNOLOGIST FOR ALUMINIUM
Maciej Drożdżyński
Email: technolog@fintecnic.pl
ALUMINIUM TECHNOLOGIST
Adam Jagodziński
Email: produkcja@fintecnic.pl
TRADE & BRAND MARKETING MANAGER
Justyna Wnęk
Email: marketing@fintecnic.pl
ACCOUNTING
Ewelina Tomasik
Email: e.tomasik@fintecnic.eu
Małgorzata Andrysiewicz
Email: m.andrysiewicz@fintecnic.eu
SERVICE
RECRUITMENT
Partners
We work with the highest quality products
Do you have questions?
Get in touch with us.
Send enquiry
Get in touch with us.